エイルヴィラ新町リーセントステージ 13階
■ペット相談可!南向き!
ローンシミュレーションこの物件を購入した場合の、月々の支払い価格の一例です。借り入れを保証するものではございません。
- 返済期間
-
- 金利
-
- ボーナス時の増額(1回分)
-
- 借入金額:
-
- 頭金:
-

- 毎月の返済額:
(※元利均等方式 金利5.00%まで ※返済年数5~50年まで入力できます)
(※ボーナスは年2回で計算しています。1000万円まで入力できます)
(※物件購入時、その他諸費用が発生する場合がございます)
担当者のコメント 下釜貴之(熊本支店)

- ■ペット相談可!南向き!
物件概要
【中古マンション】 物件番号:95372471 情報更新日:2025年12月05日 次回更新予定日:2025年12月19日| 所在地 | 熊本県熊本市中央区新町3丁目 | ||
|---|---|---|---|
| 交通 | |||
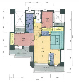
| 間取り/詳細 | 3LDK | ||
| 専有面積/バルコニー面積 | 73.52㎡/23.08㎡ | ルーフバルコニー面積/テラス面積/専用庭面積 | -/-/- |
| 価格 | 1,890万円 | ||
| 管理費 | 5,100円 | ||
| 修繕積立金 | 10,200円 | 修繕積立基金 | - |
| 権利金 | - | 駐車場/月額料金 | -/- |
| 土地の敷金/保証金 | -/- | 借地料/借地期間 | -/- |
| 土地権利 | 所有権 | 国土法届出要否 | 不要 |
| 用途地域 | - | 地勢 | - |
| 種別/構造 | 中古マンション/鉄骨鉄筋コンクリート | 向き | 南 |
| 築年月(築年数) | 2002年 3月 (築23年) | ||
| 所在階/階建 | 13階/13階建 | 棟総戸数/販売戸数 | 48戸/- |
| 管理組合有無 | - | 管理形態 | 管理会社に全部委託 |
| 管理員の勤務形態 | 日勤 | 管理会社 | - |
| 取引態様 | 仲介 | 現況 | 空家 |
| 引渡し | 相談 | 建築確認番号 | - |
| 物件番号 | 95372471 | 取引条件の有効期限 | 2025年12月19日 |
| 設備条件 |
|
||
| 備考 |
★☆住宅ローンの事なら「にっこりハウス」にお任せください★☆★ 銀行融資内定率90%!!(多数の銀行様をご紹介できます) ★お気軽にご相談下さい。 自己資金がゼロ・62歳以上の方・ご年収180万以上の方・勤続年数が短い・外国籍などといった内容で「ローンが通るか分からないのに、物件のご内覧をしても・・・」と悩まれるお客様も安心!お客様の「夢のマイホーム」に向けて最適のプランをご提案しております!※事前面談もご提案しております(場所/にっこりハウス、ご自宅近くのカフェ・ファミレスなど) ★例(金利年率1%、返済期間35年、頭金0円、ボーナス払い無しの場合) 借入金額980万・・・毎月の返済額27,664円/月 借入金額1980万・・・毎月の返済額55,893円/月 借入金額2980万・・・毎月の返済額84,121円/月 ※おおよその計算でございます。ご了承くださいませ。 |
||
| 取扱会社 |
|
||
※地図上に表示される物件の位置は付近住所に所在することを表すものであり、実際の物件所在地とは異なる場合がございます。


















